• STUDIO
  • KÜCHENINSEL
  • DIE HALDE
  • SONNENHOF
  • OVERBOIL
  • BACKGROUND
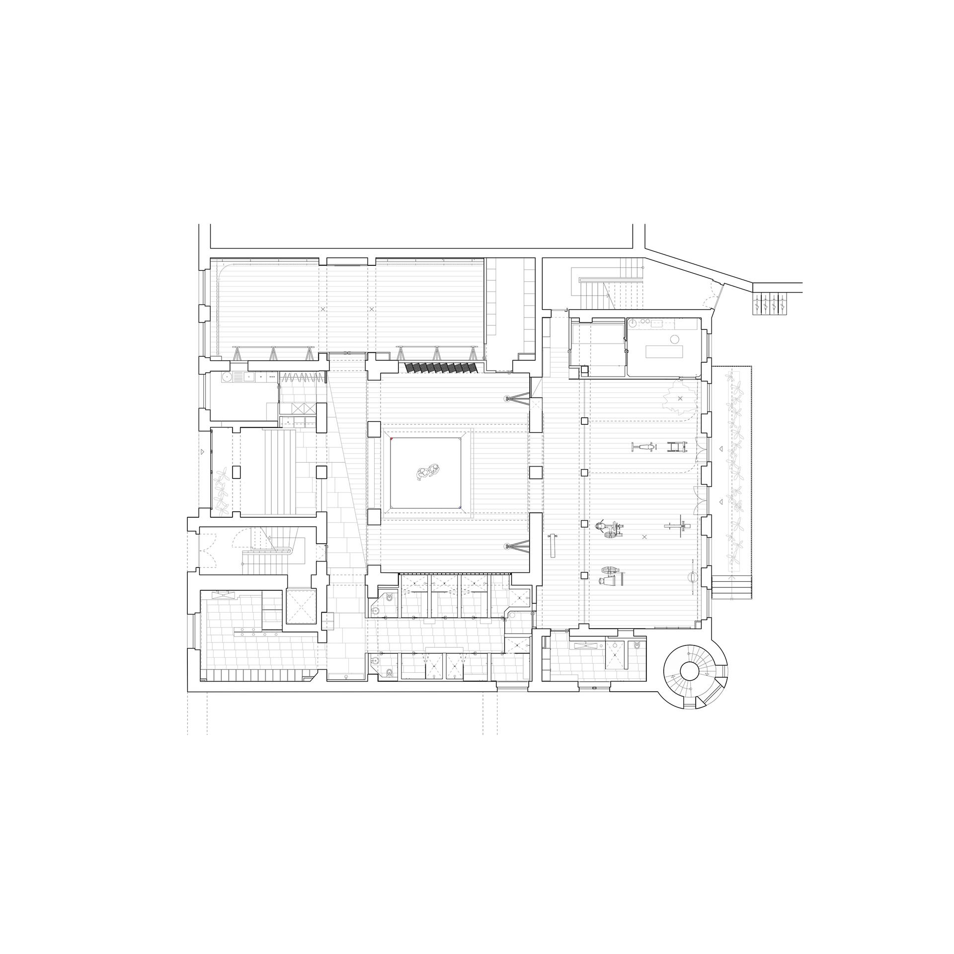
  • KONZEPT SPORT STUDIO
  • DIGITAL BASEL
  • VEDUTEN
  • RESEARCH
  • ERINNERUNGSRAUM
  • QUARTIER PAVILLON
  • FUTURE ME
  • THE ART OF PROTEST
  • ABOUT
  • CV
  • PROJEKTE
  • KONTAKT
  • IMPRESSUM
  • DATENSCHUTZ
Background
  • STUDIO
  • KÜCHENINSEL
  • DIE HALDE
  • SONNENHOF
  • OVERBOIL
  • BACKGROUND
  • KONZEPT SPORT STUDIO
  • DIGITAL BASEL
  • VEDUTEN
  • RESEARCH
  • ERINNERUNGSRAUM
  • QUARTIER PAVILLON
  • FUTURE ME
  • THE ART OF PROTEST
  • ABOUT
  • CV
  • PROJEKTE
  • KONTAKT
  • IMPRESSUM
  • DATENSCHUTZ
Background
Studio Sidler
Studio Sidler